Feuerwehr-Peripherie

Aus Brandschutz Wiki
Wechseln zu: Navigation, Suche

Inhaltsverzeichnis

Was ist Feuerwehr-Peripherie?

FWP07.jpg

Die Feuerwehren sind ständig bestrebt ihre Alarmorganisation zu optimieren. Mit dem Feuerwehr-Schlüsselkasten, heute Feuerwehr-Schlüsseldepot, wurde ein Aufbewahrungstresor für Objektschlüssel geschaffen. Somit war im Einsatzfall ein gewalt- und zerstörungsfreier Objektzutritt möglich.

Mit dem Feuerwehr-Bedienfeld wurde eine einfache und einheitliche Bedieneinrichtung für die Brandmeldeanlage kreiert.

Zum Auffinden der einzelnen Brandmelder wurden Objektpläne mit dem Laufweg zu den einzelnen Meldern eingeführt, die mit unterschiedlichen Namen, z.B. Feuerwehr-Laufkarten, Schleifenpläne, Melderkarten, Melderauffindungspläne usw. belegt wurden. Nach dem Objektzutritt war immer die Brandmelderzentrale der erste Anlaufpunkt. Die Brandmelderzentrale musste zwangsläufig im Eingangsbereich installiert werden. Die Komplexität und die Vielfalt der angebotenen Brandmelderzentralen prägten die Idee nach einer einfachen und einheitlichen Anzeige für Feuerwehr-Einsatzkräfte. Das äußere Erscheinungsbild sollte dem des gewohnten Feuerwehr-Bedienfeldes entsprechen. Das Feuerwehr-Anzeigetableau FAT war geboren und wurde 2002 zur Norm.

Das FAT bot neue Möglichkeiten, sowohl für die Feuerwehren, als auch für die Architekten und Betreiber. Der erste Anlaufpunkt für die Feuerwehren konnte losgelöst von der Brandmelderzentrale gestaltet werden. Der Betreiber einer Brandmeldeanlage musste im Eingangsbereich keinen wertvollen Raum für die Brandmelderzentrale zur Verfügung stellen. Die feuerwehrrelevante Peripherie der Brandmeldeanlage konnte zu objektspezifischen Systemen zusammengefasst werden. Mit eigenständigen Systemen wurde die Installation sowohl im Innen- als auch im Außenbereich ermöglicht. Die ganzheitliche Betrachtung dieses Lösungsansatzes war die Geburtsstunde der Feuerwehrperipherie.

Die Anfahrtszeit der Feuerwehr und daher der frühest mögliche Löschbeginn ist wenig beeinflussbar. Zur Verkürzung der Interventionszeit ist somit die Feuerwehr-Peripherie der BMA, für die Einsatzkräfte der Feuerwehr umso wichtiger.

Die Feuerwehr-Peripherie stützt sich dabei auf folgende relevanten Normen des Feuerwehrwesen, welche in diesem Handbuch näher erläutert werden:

DIN 14675 Aufbau und Betrieb von Brandmeldeanlagen, speziell

Feuerwehr-Schlüsseldepot (FSD)

Feuerwehr-Laufkarten

Feuerwehr-Anzeigetableau (FAT)

Feuerwehr-Bedienfeld (FBF)

DIN 14661 Gerätenorm für ein Feuerwehr-Bedienfeld

DIN 14662 Gerätenorm für ein Feuerwehr-Anzeigetableau

DIN 14663 Gerätenorm für ein Feuerwehr-Gebäudefunkbedienfeld

Die Unterstützung der schnellen und präzisen Branddetektion durch die Brandmelderzentrale, ist der schnelle und gewaltfreie Gebäudezutritt für Einsatzkräfte der Feuerwehr und die schnelle und präzise Brandlokalisation vor Ort. Die Feuerwehr-Peripherie als eigenständiger Lösungsansatz, steigert die Qualität der Erkundungssicherheit und -geschwindigkeit der Einsatzkräfte.







Feuerwehr-Schlüsseldepot (FSD) nach DIN 14675

Feuerwehr-Schlüsseldepot der Klasse 3 für drei überwachte Objektschlüssel

Der Betreiber hat der Feuerwehr rund um die Uhr den gewaltfreien Zugang zu allen mit Brandmeldern bzw. mit selbständigen Löschanlagen geschützten Räumen sicherzustellen.

Wenn durch geeignetes Personal, mit Schlüsselgewalt, dies nicht sichergestellt ist, kann auf schriftlichen Antrag des Betreibers ein Feuerwehr-Schlüsseldepot zur Aufbewahrung des/der Objektschlüssels zugestanden werden. Vor der Antragstellung zum Einbau eines Feuerwehr-Schlüsseldepots, muss zwischen dem Betreiber der Brandmeldeanlage und dem zuständigen Schadensversicherer, privatrechtlich der Einsatz des zu verwendenden Schlüsseldepots vereinbart werden.

Definition:

Ein Feuerwehr-Schlüsseldepot ist ein zweitüriges Tresorbehältnis (Ausnahme Klasse 1) für die Aufbewahrung von Gebäudeschlüssel, gegen unbefugten Zugriff gesichert, das bei einer Brandmeldung entriegelbar ist (Ausnahme Klasse 1), um der Feuerwehr in Abwesenheit des Betreibers gewaltfreien Zugang zum Objekt zu ermöglichen.

Klassifizierung

Feuerwehr-Schlüsseldepots, zur Verwahrung von Objektschlüssel, werden abhängig vom Anwendungsfall in drei Klassen eingeteilt.

Klasse 1: geringes Risiko

nicht für Generalschlüssel

nur für Einzelschlüssel mit Einzelschließung

nur mechanisch aufgebaut

keine Anbindung an die BMA


Klasse 2: mittleres Risiko

nicht für Generalschlüssel

nur für Einzelschlüssel mit Einzelschließung

Anbindung (elektrisch) an BMA

ohne Sabotageüberwachung



Klasse 3: hohes Risiko

auch für Generalschlüssel

auch für Schlüssel für Scharfschalteinrichtungen

Anbindung (elektrisch) an die BMA

mit Sabotageüberwachung

VdS-anerkennung erforderlich


Mindestforderungen in den unterschiedlichen Klassen

Klasse 1

mechanisch stabiles Gehäuse

max. 2 Schlüssel hinterlegbar

nur eine Tür mit Feuerwehrschließung entriegelbar

Deponierung des/der Schlüssel hinter der Tür mit geeigneter Aufnahme

kann auch als Schlüsselrohr aufgebaut sein


Klasse 2

mechanisch stabiles Gehäuse

max. 3 Schlüssel hinterlegbar

zwei Türen

integrierte 5W-Heizung

Außentür elektrisch entriegelbar durch Brandmeldeanlage

Innentür nur mit Schlüssel der Feuerwehr entriegelbar

Deponierung des/der Objektschlüssel hinter der Innentür

elektronische Überwachung der Außentür auf Verschluss

keine Sabotageüberwachung

entspricht nicht den Geräteanforderungen nach VdS-Richtlinie 2105


Klasse 3

mechanisch stabiles Gehäuse

max. 3 Schlüssel hinterlegbar

zwei Türen

integrierte 5W-Heizung

Außentür elektrisch entriegelbar durch Brandmeldeanlage

Innentür nur mit Schlüssel der Feuerwehr entriegelbar

Deponierung des/der Objektschlüssel hinter der Innentür

elektronische Überwachung der Außentür auf Verschluss

Geräteanforderungen nach VdS-Richtlinie 2105

Sabotageüberwachung

-Überwachung der Außentür auf Durchbruch

-Überwachung der Objektschlüssel auf Vorhandensein

-Überwachung der Außentür auf die geschlossene Stellung

Die Meldung der Überwachung muss an eine ständig besetzte Stelle weitergeleitet werden


Wird ein Schlüsseldepot installiert, ist die Aufbewahrung von Schlüsseln in diesem 
Schlüsseldepot für den Versicherungsort eine Gefahrenerhöhung, die dem 
Einbruchdiebstahlversicherer angezeigt werden muss.
Hat das Feuerwehr-Schlüsseldepot keine Geräteanerkennung vom Verband der 
Schadensversicherer und/oder ist es nicht gemäß der VdS-Richtlinien für 
Schlüsseldepots installiert, betrieben oder instandgehalten, besteht kein Ver-
sicherungsschutz für Schäden durch Einbruchdiebstahl, wenn das Gebäude mit 
dem aus dem Schlüsseldepot entwendeten Schlüssel geöffnet wurde.

Feuerwehr-Schlüsseldepot der Klasse 1

FSD1k13.jpg


Dieses Feuerwehr-Schlüsseldepot wird in aller Regel von Schadensversicherer nicht anerkannt. Der Einsatz ist nur bei ganz geringen Risiken, z.B. Einzelschlüssel einer Hofeinfahrt, zugelassen. Es sind keinerlei Schutz- und Überwachungs- maßnahmen vorgesehen. Die Schließung wird zwischen Feuerwehr und Betreiber abgestimmt.


Feuerwehr-Schlüsseldepot der Klasse 2

Das Feuerwehr-Schlüsseldepot der Klasse 2 entspricht dem FSD der Klasse 3, es fehlt allerdings die Überwachung auf Sabotage.


Feuerwehr-Schlüsseldepot der Klasse 3

Feuerwehr-Schlüsseldepot der Klasse 3 für drei überwachte Objektschlüssel

elektromagnetischer Verschluss regionale Feuerwehrschließung Außentür: mit elektrischer Entriegelung durch die BMZ Bohrvollschutz für Problemmauerwerk oder Hohlsäule Bohrvollschutz mit Heizung an der Außentür Innentür: mechanische Entriegelung durch die Feuerwehr bauseitig einzubauende Profilhalbzylinder für die Überwachung des Objektschlüssls



Die Entnahme des/der Objektschlüssel hat wie folgt abzulaufen:

-Durch eine Brandmeldung und/oder durch die Rückmeldung der ausgelösten Übertragungseinrichtung (Brandalarm) wird die äußere Tür automatisch entriegelt und gibt somit den Zugang zur Innentür frei.

-Die hauptverantwortliche Person der Feuerwehr öffnet mit einem nur für FSDs regional festgelegten Schlüssel die Innentür und kann den Objektschlüssel durch Drehen entsichern.

-Der entsicherte Schlüssel kann zu Erkundungsaufgaben der Feuerwehr entnommen werden.

-Bei Erkundungsende muss der Objektschlüssel im Überwachungszylinder gesichert werden.

-Nach der Deponierung des Objektschlüssels ist die Innentür unverzüglich durch die hauptverantwortliche Person der Feuerwehr zu verschließen.

-Die Außentür muss verschlossen werden und wird nach dem Rücksetzen der BMA verriegelt.


Montage

Einbauort

Das Feuerwehr-Schlüsseldepot muss in unmittelbarer Nähe (Umkreis von etwa 5m) vom Feuerwehrzugang oder -zufahrt angebracht werden. Das Feuerwehr-Schlüsseldepot ist vorzugsweise an wettergeschützten Stellen zu installieren, z.B. in Nischen, Durchgängen oder unter Vordächern. Gegebenenfalls ist ein Regenabweiser oder ein Schutzdach anzubringen. Der Regenabweiser oder das Schutzdach sind so anzubringen, dass sie keinesfalls ein Aushebeln des Feuerwehr- Schlüsseldepots unterstützen.

Einbau des FSDs in eine Außenwand

Nach VdS-Richtlinie 2105 sind folgenden Wände zum Einbau eines Feuerwehr- Schlüsseldepots vorgesehen:

-Mauerwerk nach DIN 1053

-Ziegeln nach DIN 105

-Kalksandstein nach DIN 106

-Wände aus Stahlbeton (mindestens B 25 nach DIN 1045)

Die Wände müssen mindestens 80mm dicker sein als die Einbautiefe des FSD. Das Feuerwehr-Schlüsseldepot muss mechanisch stabil z.B. mit Mörtel nach DIN 1053 eingemauert oder in die Betonwand eingegossen werden.


FSD mit integriertem Bohrvollschutz für Problemmauerwerk - kein Einmauern erforderlich

Wärmeschutzfassaden entsprechen in der Regel nicht diesen Anforderungen. In all diesen Fällen kann ein Feuerwehr-Schlüsseldepot mit integriertem 6-seitigem Bohrvollschutz ohne Betonverguss eingebaut werden. Zur mechanischen Stabilität ist zusätzlich eine verwindungssteife Einbau-Konsole aus Edelstahl erforderlich. Die Montage muss so erfolgen, dass das FSD nur durch den gesicherten Innenraum des Schlüsseldepot demontierbar ist. Jeder Einbau des Feuerwehr-Schlüsseldepots muss so durchgeführt werden, dass die Außentür bündig mit der Außenfläche der Wand abschließt. Die Unterkante des Feuerwehr-Schlüsseldepots muss sich zwischen 0,8m und 1,40m über dem Boden befinden.



Einbau des FSD in eine freistehende Säule

Das Feuerwehr-Schlüsseldepot muss nicht in eine Wand eingebaut werden. In vielen Anwendungsfällen wie, z.B. Glasfassaden, steht auch keine geeignete Wand zur Verfügung. Mit einer Schlüsseldepot-Säule wird das Feuerwehr-Schlüsseldepot freistehend oder unmittelbar an eine Gebäudewand montiert. Nach VdS-Richtlinie 2105 sind zwei Säulenkonzepte möglich:

-Demontierbare Hohlsäule ohne Betonverguss - mit VdS-Anerkennung. Die mechanische Festigkeit wird über die Säulenkonstruktion erreicht.

-Säule ohne Demontagemöglichkeit mit Betonverguss - ohne VdS-Anerkennung Die mechanische Festigkeit wird über den eingegossenen Beton erreicht.

Demontierbare Hohlsäule



Hohlsäule (demontierbar) ohne Betonverguss

Bei Verwendung der demontierbaren Hohlsäule gilt folgendes:

Material aus Edelstahl mit einer Wandstärke von mindestens 3mm

Die Säule bedarf einer Geräteanerkennung durch den Verband der Schadensversicherer

Das Fundament der Säule muss mindestens (B/H/T) 100/100/80 cm groß ausgeführt sein.

Die Säule muss fest mit dem Fundament, durch Sicherheits-Ankerdübel verankert sein

Die Demontage des Feuerwehr-Schlüsseldepots darf nur vom Innenraum des FSD aus möglich sein

Die Demontage der Säule darf nur nach Demontage des Feuerwehr-Schlüsseldepots, vom Innenraum der Säule aus möglich sein.

Nach Demontage ohne bleibende Formveränderung wieder einsetzbar

Geschützte Kabelzuführung über ein Stahlpanzerrohr durch das Fundament und die Säule

Das in der Säule eingebaute Feuerwehr-Schlüsseldepot muss allseitig mit Vollbohrschutz, für Bohrungen größer als 8mm (Fronttür 2mm), überwacht sein


Säule mit Betonverguss ohne Demontagemöglichkeit

Bei Verwendung einer vergießbaren Säule gilt folgendes:

Material mit einer ausreichenden mechanischen Festigkeit als Verschalung für den Beton

Das Fundament der Säule muss mindestens (B/H/T) 100/100/80 cm groß ausgeführt sein

Im Fundament müssen systemgebundene Moniereisen integriert sein

Die Säule muss durch den eingegossenen Beton fest mit dem Fundament verbunden sein

Das Gesamtgewicht der Säule muss mindestens 400kg betragen

Geschützte Kabelzuführung über Stahlpanzerrohr durch Fundament und ausgegossener Säule

Das FSD darf nicht demontierbar sein

Heizung

Die Heizung des Feuerwehr-Schlüsseldepots muss ständig mit Spannung versorgt sein. Sie muss nicht aus der Energieversorgung der BMA versorgt werden. Eine Überbrückung des Ausfalls der Energieversorgung ist nicht erforderlich. Sie muss jedoch aus einem Niederspannungsstromkreis gespeist werden, dessen Ausfall unmittelbar gemeldet wird.

Leitungsverlegung

Das Anschlusskabel muss von der Gehäuserückseite des FSD oder seitlich, in unmittelbarer Nähe der Gehäuserückseite, in den Anschlussraum des FSD eingeführt werden. Leitungen zwischen FSD und den Anschlussklemmen der BMZ-Steuerelektronik sind vorzugsweise unter Putz oder in Metallrohren zu verlegen. Bei einer Verlängerung des Kabels sind hierfür geeignete Kabelverbindungen zu verwenden. Ist das FSD vom Gebäude abgesetzt, so muss dessen Leitung mindestens 80 cm tief im Erdreich und zusätzlich mechanisch geschützt verlegt werden.

Elektrische Anschaltung

FSDs müssen über eine Mehraderleitung an die BMA angeschlossen werden. Die Steuerung und Überwachung des Feuerwehr-Schlüsseldepots muss über eine definierte Schnittstelle erfolgen.

Für das Schlüsseldepot der Klasse 3 ist in der VdS-Richtlinie 2105 folgende Schnittstelle festgelegt:

Klemme 1: Primärleitung für Sabotageüberwachung

Klemme 2: Primärleitung für Sabotageüberwachung

Klemme 3: Anschluss für Abschlusswiderstand

Klemme 4: Anschluss für Abschlusswiderstand

Klemme 5: Ansteuerung für die Entriegelung der Außentür

Klemme 6: Ansteuerung für die Entriegelung der Außentür

Klemme 7: Rückmeldekontakt für Verriegelung der Außentür

Klemme 8: Rückmeldekontakt für Verriegelung der Außentür

Klemme 9: Heizung

KLemme10: Heizung


Diese definierte Schnittstelle ist entweder in der BMZ integriert oder es muss ein VdS- anerkannter Schlüsseldepot-Adapter als Steuerelektronik zwischen BMZ und FSD geschaltet werden. Der Schlüsseldepot-Adapter ist, sofern er nicht als Einschub in der Brandmelderzentrale enthalten ist, in unmittelbarer Nähe der zugehörigen Brandmelderzentrale zu installieren. Die Anzeigen des Schlüsseldepot-Adapters „entriegelt“ und „Alarm“ sollten zusätzlich an der Feuerwehr-Erstinformation erfolgen. Die Anschaltung hat nach Herstellerangaben zu erfolgen.

Potenzialausgleich

Das FSD muss über eine Leitung mit einem Querschnitt von mindestens 4mm² mit dem Potenzialausgleich der BMA verbunden werden. Die VDE-Bestimmungen zum Schutz vor Überspannung sind zu beachten.

Schließung der Innentür

Es dürfen ausschließlich nur Schlösser gemäß VdS-Richtlinien für die Innentür des Schlüsseldepots verwendet werden, und zwar:

Profilhalbzylinder, mit VdS-Anerkennung (min. Klasse B), in Abstimmung mit der regionalen Feuerwehr.

Doppelbart-Umstellschloss, mit mindestens 6 asymmetrischen Zuhaltungen, in Abstimmung mit der regionalen Feuerwehr.


Sogenannte Altschließungen (z.B. Kromer Typ 2731 1112 35, Mauer Typen 5 und 7Z sowie StuV Typ Dreibolzen) dürfen seit 1997 nach Festlegung des VdS nicht mehr verwendet werden. Der Betreiber muss dafür Sorge tragen, dass diese Schließungen vom jeweiligen Schlüsselträger der Feuerwehr ausgetauscht werden. Eine für das FSD (Ausnahme Klasse 1) eingesetzte Schließung darf nicht für andere Zwecke verwendet werden.

Auch Schlüsseldepots mit anderen Anwendungen, z. B. Polizei, Wach- und Schließunternehmen sind also mit anderen Schließungen zu versehen.

Objektschlüsselüberwachung

Die hinterlegten Objektschlüssel werden auf Vorhandensein ständig überwacht. Die Überwachung hat direkt mit einem bauseitig einzubauenden Objektschließzylinder zu erfolgen. In besonderen Fällen kann die Überwachung auch indirekt (z.B. mit einem Hilfsschlüssel, der mit dem zu deponierenden Schlüssel untrennbar verbunden ist) erfolgen. Für den Hilfsschlüssel ist ein Schließzylinder entsprechend den Richtlinien nach VdS 2156, mindestens Klasse A, zu verwenden. Werden mehrere Schlüssel an einem Schließzylinder deponiert, so müssen diese untrennbar miteinander verbunden sein. Aus einsatztaktischen Gründen dürfen mit dem überwachten Schlüssel nicht mehr als 2 weitere Objektschlüssel verbunden sein. Alle Schlüssel sind eindeutig zu kennzeichnen. Die bedarfsgerechte Aktualisierung der Objektschlüssel (z.B. durch Änderung der Schließanlage) liegt in der Verantwortung des Objektbetreibers.

Feuerwehr-Schlüsseldepot für drei einzelüberwachte Objektschlüssel

Maßnahmen bei Ausfall der Überwachung

Sofern die Überwachung des FSD aus technischen oder organisatorischen Gründen nicht mehr sichergestellt ist, müssen vom Betreiber alle Objektschlüssel einschließlich der Profilzylinder unverzüglich entnommen werden. Das Schloss der Innentür des FSD muss ausgebaut und bei der Feuerwehr sicher verwahrt werden.

Instandhaltung

Die Inspektion und Wartung muss nach DIN 14675 und VDE 0833 durch eine Fachfirma erfolgen.

Inspektion

Eine Inspektion ist mindestens vierteljährlich durchzuführen. Hierbei sind mindestens zu prüfen:

Äußere Unversehrtheit des FSD

Funktion der elektromagnetischen Entriegelungseinrichtung

Leichte Beweglichkeit der Außentür des FSD

Funktion der Öffnungsüberwachung (elektrisch und mechanisch)

Durchgängigkeit des Potenzialausgleiches

Unversehrtheit des Kabelüberganges zur Flächenüberwachung der Tür

Wartung

Eine Wartung ist mindestens einmal jährlich durchzuführen. Hierbei sind mindestens zu prüfen:

Stromaufnahme der Entriegelungseinrichtung der Außentür

Funktion der Heizung

Alle Funktionen des FSD

Überprüfung der Überwachung

Entnahme der Objektschlüssel

Versuch das FSD ohne die ordnungsgemäß hinterlegten Objektschlüssel zu verschließen

Die Wartungsarbeiten müssen in Anwesenheit der Feuerwehr oder deren Beauftragten erfolgen, so fern die Überprüfung der hinterlegten Schlüssel nicht anderweitig geregelt wurde. Alle Instandhaltungsarbeiten sind im Betriebshandbuch der jeweiligen BMA einzutragen. Der Betreiber hat der Feuerwehr oder deren Beauftragten die Kontrolle der hinterlegten Objektschlüssel auch außerhalb der jährlichen Wartungsinterwalle zu ermöglichen.

Informationsanzeigen für Feuerwehr-Schlüsseldepot

In Absprache mit der jeweils zuständigen Feuerwehr ist eine Informationsanzeige anzubringen, welche den Alarmzustand der BMA am Objekteingangsbereich signalisiert. Die Feuerwehr muss die entsprechende Kennfarbe, das Aussehen und den Standort festlegen.

Freischaltelement für FSD

Freischaltelement für Profilzylinder


Das Freischaltelement ist eine Schalteinrichtung für Feuerwehren zur manuellen Auslösung der BMA. Wenn sich die BMA nicht im Alarmzustand befindet, wird bei Betätigung durch eine verantwortliche Person der Feuerwehr, ein Brandalarm ausgelöst. Das Freischaltelement kann ein Schlüsselschalter mit VdS-Anerkennung oder ein verschlossener Handfeuermelder sein.


Die Anschaltung des Freischaltelem entes an die BMA erfolgt wie ein Handfeuermelder. Die Auslösung der BMA über das Freischaltelement darf die Brandfallsteuerungen der BMA nicht beeinflussen. Das Freischaltelement ist in Unterputzmontage, in unmittelbarer Nähe des FSD einzubauen. Die elektronische Entriegelung der Außentür des FSD kann auch durch Fernauslösung durch die hilfeleistende Stelle (z.B. Einsatzleitzentrale) erfolgen.









Feuerwehr-Anzeigetableau (FAT) nach DIN 14662

Feuerwehr-Anzeigetableau DIN 14662 mit separatem (eigenständigem) Gehäuse

Feuerwehren müssen im Einsatzfall in zeitkritischen Situationen schnelle und präzise Entscheidungen treffen. Hierfür ist eine einheitliche und einfache Informationsanzeige unerlässlich. Mit DIN 14662 wurde diese einfache und einheitliche Anzeige als Feuerwehr-Anzeigetableau für jede Brandmelderzentrale genormt. In der Norm werden im wesentlichen die Funktionen und das einheitliche Erscheinungsbild definiert. Das FAT kann sowohl in einem eigenständigen Gehäuse als auch in anderen Gehäusen von Komponenten der Brandmeldeanlage eingebaut oder integriert sein. Im eigenständigen Gehäuse muss die Gehäuseoberfläche der Farbe RAL 7032 (kieselgrau) entsprechen. Wenn das FAT als Erstinformation für die Einsatzkräfte der Feuerwehr eingesetzt wird, muss die Anschaltung redundant erfolgen. Das FAT darf die Funktion der BMA nicht negativ beeinflussen.

Definition

Gerät zum Anschluss an eine Brandmelderzentrale (BMZ), welches bestimmte Betriebszustände der Brandmeldeanlage (BMA) in einfacher und einheitlicher Erscheinungsform anzeigt und den Einsatzkräften der Feuerwehr auch ohne Mitwirkung des Betreibers der BMA erforderliche Informationen darstellt.









Aufbau und Funktion

FAT21-1.jpg



Anzeige- und Bedienelemente

FAT21-2.jpg



Anzeigeprioritäten

Der Alarmzustand hat höchste Priorität und wird automatisch angezeigt. Störungsmeldezustand und Abschaltzustand haben nachrangige Priorität und werden nur durch das Betätigen des Bedienelementes „Anzeigeebene“ zur Anzeige gebracht. Erfolgt innerhalb von 15 s bis 30 s keine Betätigung eines Bedienelementes, muss bei anstehender Meldung über den Alarmzustand im alphanumerischen Display die zeitlich erste und letzte Meldung des Alarmzustandes angezeigt werden. Liegt keine Meldung des Alarmzustandes vor, darf im Display nach Ablauf der Zeit keine Meldung angezeigt werden.

Anzuzeigende Meldungen und Informationen

Die Daten der BMZ-Ausgangsschnittstelle werden vom FAT ausgewertet und aufbereitet. Eine Veränderung der anzuzeigenden FAT-Informationen darf nur nach dem Öffnen des Gehäuses durch eine berechtigte Person erfolgen. Mit technischen oder organisatorischen Maßnahmen muss sichergestellt werden, dass die anzuzeigenden Informationen der BMZ und des FATs inhaltlich übereinstimmen. Im Display müssen zwei Meldungen mit jeweils zwei zusammenhängende Zeilen und insgesamt 40 Zeichen darstellbar sein. Die erste Meldung hat links oben zu beginnen.

Darstellung der Meldungen

Bei Meldergruppen und Melder ist die Darstellung, wie folgt festgelegt:


      1   2   3    4   5   6   7   8   9   10   11 	12  13	14   15	   16	 17  18   19 	20	
      G   G   G    G   G   /   M   M   _												

„GGGGG“ bezeichnet die Meldergruppennummer, welche rechtsbündig ausgerichtet ist; nicht vorhandene Dezimalstellen werden durch Leerzeichen ersetzt

das „/“ ist die Trennung der Meldergruppennummer von der Meldernummer in der Darstellung und befindet sich immer an der 6. Stelle

„MM“ bezeichnet die Meldernummer, welche linksbündig zum Trennzeichen ausgerichtet ist; nicht vorhandene Dezimalstellen werden durch Leerzeichen ersetzt

„_„ ist ein Leerzeichen zu dem darauffolgenden Text und befindet sich immer an der 9. Stelle

Der darauffolgende Text ist in Abstimmung mit der Feuerwehr frei definierbar und beginnt immer an der 10. Stelle der ersten Zeile einer Meldung. Für den Text stehen also 31 Zeichen zur Verfügung.

Bei mehr als zwei gleichzeitig anstehenden Meldungen gilt folgendes:

Die zeitlich zuerst eingegangene Meldung beginnt in der ersten Zeile des alphanumerischen Displays

Die zeitlich zuletzt eingegangene Meldung beginnt in der dritten Zeile des alphanumerischen Displays

In den ersten beiden Zeilen können durch das Betätigen der Bedienelemente „weitere Meldungen“ noch weitere anstehende Meldungen angezeigt werden. In den letzten beiden Zeilen steht immer die zeitlich zuletzt eingegangene Meldung an. Jede Anzeige einer weiteren anstehenden Meldung muss durch jeweils eine manuelle Betätigung abgerufen werden.

Durch Blinken der Anzeige im Bedienelement „weitere Meldungen“ wird angezeigt, dass weitere Meldungen der aktiven Anzeigeebene mit dem jeweiligen Bedienelement abrufbar sind. Durch einmaliges Betätigen des Bedienelementes wird in den ersten beiden Zeilen des Displays die zeitlich nächst eingegangene Meldung angezeigt.

Anzeigeebenen

Anzeige des Alarmzustandes

Die Anzeige „Alarm“ leuchtet, wenn eine Meldung über den Alarmzustand der BMZ vom FAT ausgewertet wurde. Diese Meldung ist im Display direkt ablesbar. Stehen weiterhin noch Meldungen über den Störungsmeldezustand und/oder den Abschaltzustand an, so blinkt die Anzeige „Störung“ und/oder „Abschaltung“.

Anzeige des Störungsmeldezustandes

Die Anzeige „Störung“ blinkt, wenn eine Meldung über den Störungsmeldezustand der BMZ vom FAT ausgewertet wurde. Diese Meldung ist nur durch das Betätigen des Bedienelementes „Anzeigeebene“ im Display ablesbar. Die Anzeige „Störung“ leuchtet, solange Meldungen über den Störungsmeldezustand im Display ablesbar sind. Liegen weiterhin noch Meldungen über den Alarmzustand und/oder den Abschaltzustand an, so blinkt die jeweilige Anzeige „Alarm“ und/oder „Abschaltung“.

Anzeige des Abschaltzustandes

Die Anzeige „Abschaltung“ blinkt, wenn eine Meldung über den Abschaltzustand der BMZ vom FAT ausgewertet wurde. Diese Meldung ist nur durch das Betätigen des Bedienelementes „Anzeigeebene“ im Display ablesbar. Die Anzeige „Abschaltung“ leuchtet, so lange Meldungen über den Abschaltzustand im Display ablesbar sind. Liegen weiterhin noch Meldungen über den Alarmzustand und/oder den Störungsmeldezustand an, so blinkt die jeweilige Anzeige „Alarm“ und/oder „Störung“.


Montage

FAT,FBF und Laufkarten in einer kompakten Funktionseinheit


Der Montageort muss im Einzelfall zwischen Betreiber und Feuerwehr abgestimmt werden. Das Feuerwehr-Anzeigetableau ist in unmittelbarer Nähe der Feuerwehrzufahrt mit FSD oder des Feuerwehrzuganges, in räumlicher Nähe mit FBF und Feuerwehr-Laufkarten, zu montieren.

Das FAT muss so angeordnet sein, das es gut zugänglich, sowie ausreichend beleuchtet ist. Die Gefahr einer möglichen Beschädigung sollte gering sein. Die Montagehöhe sollte 1700mm(+100/-200mm) betragen, gemessen von der Standfläche des Betätigenden bis Mitte des Gerätes.

Schließung

In das Türschloss muss ein Profilhalbzylinder nach DIN 18252 einbaubar sein. Auskunft über die einzubauende Schließung erteilt die zuständige Feuerwehr.

Aufbau

Das Feuerwehr-Anzeigetableau muss in einem stabilen Gehäuse mit verschließbarer Tür untergebracht sein. Im Gehäuse müssen für die Anschlussleitungen ein entsprechender Anschlussraum mit Kabeldurchführungen vorhanden sein. Die Anschlussleiste darf nur bei geöffneter Tür zugänglich sein.

Elektrischer Anschluss

Anschaltung als Feuerwehr-Erstinformation mit vorgeschriebener Redundanz


Das FAT muss über eine Primärleitung mit Überwachung an die BMZ angeschaltet werden. Die Leitungen sind in Funktionserhalt E30 auszuführen. Die Energieversorgung hat aus der BMZ zu erfolgen.

Wenn das FAT als Erstinformation für die Feuerwehr eingesetzt wird, muss die Verbindung zwischen FAT und BMZ redundant ausgeführt sein. Bei redundanter Anschaltung sind die Leitungen separat zu führen. Wenn die Redundanzanforderung nicht mit zweiunabhängigen BMZ-Schnittstellen erfüllt werden kann, muss dies mit einem speziellen Schnittstellenmodul erfolgen. Dieses Schnittstellenmodul muss systemgebunden zum Feuerwehr-Anzeigetableau sein und zusammen mit dem FAT von einer akkreditierten Stelle, z.B. VdS, geprüft sein.


Systemüberwachung

Das FAT muss über eine Einrichtung zur Überwachung der Betriebsbereitschaft und einer Möglichkeit zur Weiterleitung verfügen, z. B. durch die Verwendung einer ”Watchdog-Schaltung” mit potenzialfreiem Ausgang. Verfügt das FAT für die Erfüllung der Redundanzforderung über zwei Schnittstelleneingänge, so muss bei Ausfall eines Schnittstelleneinganges dies als Störung erkannt und an die BMZ signalisiert werden.

Konformität und Kompatibilität

Die Übereinstimmung des FATs mit der Norm (DIN 14662) ist durch eine Typprüfung von einer akkreditierten Stelle (z.B. VdS) festzustellen. Bei Übereinstimmung muss dem Hersteller eine Konformitätsbescheinigung ausgestellt werden. Die Kompatibilität zwischen FAT und der jeweiligen BMZ muss geprüft werden. Der Hersteller der BMZ bestätigt dem Hersteller des FATs die Kompatibilität in Form einer Kompatibilitätsbescheinigung.

Inbetriebnahme

Vor Inbetriebnahme ist durch eine Elektrofachkraft eine Prüfung des Zusammenwirken mit der betriebsbereiten BMA durchzuführen. Die Funktionsprüfung erstreckt sich auf die bestimmungsgemäßen Funktionen aller Anzeige- und Bedienelemente, sowie das Zusammenwirken von FAT und BMZ. Über die Abnahmeprüfung ist ein Protokoll mit den Unterschriften, der für die Abnahmeprüfung verantwortlichen, zu erstellen.

Instandhaltung

Lageplantableau

Die Inspektion und Wartung muss nach DIN 14675 und VDE 0833 durch eine Fachfirma erfolgen.

Inspektion

Eine Inspektion ist mindestens vierteljährlich durchzuführen. Hierbei sind mindestens zu prüfen:

-Äußere Unversehrtheit des FATs

-Bereitschaftskontrolle der Betriebsanzeige und des Displays

Wartung

Eine Wartung ist mindestens einmal jährlich durchzuführen. Hierbei sind mindestens zu prüfen:

-Stromaufnahme des FATs im Ruhezustand und im Alarmzustand

-Alle Funktionen des FATs durch die Auslösung und Rücknahme mindestens einer Alarm-, Störungs- und Abschaltungsmeldung

-Überprüfung der Leitungsüberwachung auf Leitungsbruch und Kurzschluss

-Beweglichkeit der Außentür(en) und des Verschlusses

Die Wartungsarbeiten müssen in Anwesenheit der Feuerwehr oder deren Beauftragten erfolgen, so fern der notwendige Schlüssel nicht anderweitig zur Verfügung steht. Alle Instandhaltungsarbeiten sind im Betriebshandbuch der jeweiligen BMA einzutragen. Der Betreiber hat der Feuerwehr oder deren Beauftragten die Kontrolle der Funktionen auch außerhalb der jährlichen Wartungsinterwalle zu ermöglichen.

Lageplantableau als Brandmeldetableau

Zur Groborientierung werden in größeren oder unübersichtlichen Objekten vereinzelt noch Lageplantableaus gefordert. Ein Lageplantableau muss seitenrichtig mit allen markanten Merkmalen des Gebäudes erstellt sein. Einzelheiten und Ausführung des Tableaus sind in Absprache mit der zuständigen Feuerwehr festzulegen.




Feuerwehr-Bedienfeld (FBF) nach DIN 14661

Feuerwehr-Bedienfeld DIN 14661 mit separatem (eigenständigem) Gehäuse


Bei Brandmeldeanlagen mit Alarmweiterschaltung an die Feuerwehr muss nach DIN 14675 ein Feuerwehr-Bedienfeld vorgesehen werden. Mit DIN 14661 wurde diese einfache und einheitliche Bedieneinrichtung für Feuerwehren als Feuerwehr-Bedienfeld für jede Brandmelderzentrale genormt. In der Norm werden im wesentlichen die Funktionen und das einheitliche Erscheinungsbild definiert. Das FBF ist sowohl eigenständig montierbar als auch in anderen Gehäusen von Komponenten der Brandmeldeanlage integrierbar. Im eigenständigen Gehäuse muss die Gehäuseoberfläche der Farbe RAL 7032 (kieselgrau) entsprechen.

Definition

Gerät zum Anschluss an eine Brandmelderzentrale (BMZ), das bestimmte Betriebszustände der Brandmeldeanlage (BMA) in einfacher und einheitlicher Erscheinungsform anzeigt und den Einsatzkräften der Feuerwehr auch ohne Mitwirkung des Betreibers der BMA eine ergonomische und einheitliche Bedienung der BMA im Alarmfall und bei Funktionsprüfungen ermöglicht.







Aufbau und Funktion

FBF28-1.jpg




Anzeige- und Bedienelemente

FBF28-2.jpg


Besondere Hinweise zu „Brandfallsteuerungen“

Brandfallsteuerungen sind alle Steuerungen, die infolge eines Alarmes von der BMZ automatisch vorgenommen werden. Beispiele von Brandfallsteuerungen:

-Auslösen von Brandschutzeinrichtungen

--automatische Löschanlagen

--Brandschutzklappen

--Rauchabzugsanlagen

-zwangsgesteuerte Aufzugsanlagen

-Abschalten von Lüftungsanlagen, EDV oder anderer Betriebsmittel

Keine Brandfallsteuerungen sind:

-akustische und optische Alarmierungseinrichtungen, z.B. Blitzleuchte

-Feuerwehr-Peripherie, z.B. Feuerwehr-Anzeigetableau (FAT), Feuerwehr-Schlüsseldepot (FSD)

Die Funktion „Brandfallsteuerungen ab“ ist bei Brandmelderzentralen nach DIN EN 54-2 :1997 nicht gegeben, da der notwendige Eingang an der BMZ nicht gefordert ist. Dieser Eingang wird jedoch in der nächsten Fassung der DIN EN 54-2 berücksichtigt. Die Funktion ist zu verwenden, wenn die BMZ sie vorsieht.

Wird durch die Funktion „Brandfallsteuerungen ab“ die Ansteuerung von automatischen Löschanlagen abgeschaltet, sollte folgendes beachtet und im Einzelfall mit den Beteiligten abgestimmt werden:

-Sind zusätzliche mechanische Sicherungsmaßnahmen des Löschanlagenherstellers gefordert, um unbeabsichtigte Auslösungen zu verhindern?

-Hat die Auslösung der Löschanlage Auswirkung auf eine Betriebs- und Nutzungsgenehmigung für Betriebseinrichtungen oder Gebäude?

-Werden durch die Abschaltung Funktionen in der Löschanlage aktiviert (z.B. vorgesteuerte Trockenanlagen)?

Besondere Hinweise zu „BMZ rückstellen“

Die Anzeige bleibt auch noch nach der Rückstellung der BMZ durch den Betreiber für eine Zeit von 15 min. erhalten, um den angerückten Einsatzkräften zu signalisieren, das die Auslösung der ÜE durch die BMZ erfolgte. In Abwesenheit des Betreibers wird eine im Alarmzustand befindliche BMZ von den Einsatzkräften mit dem Bedienelement „BMZ rückstellen“ erst nach dem Eintragen der Brandmeldung in das Betriebsbuch zurückgestellt. Mit der Rückstellung der BMZ ist auch die Rückstellung der ÜE verbunden. Für die Rückstellung der ÜE sind zwei verschiedene Verfahren in Anwendung, die sich durch den jeweiligen Typ der ÜE unterscheiden:

-Rückstellung ist durch die alleinige Bedienung an der BMZ möglich und in diesem Fall auch vom FBF aus.

-Rückstellung ist nur mit zusätzlicher Bedienung an der ÜE selbst möglich.

Montage

FBF mit FAT und ÜE

Der Montageort muss im Einzelfall zwischen Betreiber und Feuerwehr abgestimmt werden. Das Feuerwehr-Bedienfeld ist in unmittelbarer Nähe der Feuerwehrzufahrt oder des Feuerwehrzuganges, in räumlicher Nähe mit der Anzeige für die Feuerwehr, z.B. FAT, zu montieren. Das FBF muss so angeordnet sein, dass es gut zugänglich,sowie ausreichend beleuchtet ist. Die Gefahr einer möglichen Beschädigung sollte gering sein. Die Montagehöhe sollte 1600mm(+100/-200mm) betragen, gemessen von der Standfläche des Betätigenden bis Mitte des Gerätes.

Schließung

In das Türschloss muss ein Profilhalbzylinder nach DIN 18252 einbaubar sein. Auskunft über die einzubauende Schließung erteilt die zuständige Feuerwehr.

Aufbau

Das Feuerwehr-Bedienfeld muss in einem stabilen Gehäuse mit verschließbarer Tür untergebracht sein. Im Gehäuse müssen für die Anschlussleitungen ein entsprechender Anschlussraum mit Kabeldurchführungen vorhanden sein. Die Anschlussleiste darf nur bei geöffneter Tür zugänglich sein.

Elektrischer Anschluss

Das Feuerwehr-Bedienfeld darf ohne Überwachung des Übertragungsweges an die BMZ angeschaltet werden. Die Leitungen sind, bei abgesetzter Montage von der BMZ, in Funktionserhalt E30 auszuführen. Die Energieversorgung sollte aus der BMZ erfolgen.

Konformität und Kompatibilität

Die Übereinstimmung des FBF mit der Norm (DIN 14661) ist durch eine Typprüfung von einer akkreditierten Stelle (z.B. VdS) festzustellen. Bei Übereinstimmung muss dem Hersteller eine Konformitätsbescheinigung ausgestellt werden. Wenn das FBF über eine nachfolgend beschriebene Schnittstelle verfügt, kann die Prüfung der Kompatibilität entfallen. Der Hersteller der BMZ, bestätigt in beiden Fällen, dem Hersteller des FBFs die Kompatibilität in Form einer Kompatibilitätsbescheinigung.






Festgelegte Ein- und Ausgänge der FBF-Schnittstelle nach DIN 14661

Eingang                                                    Ausgang
Betriebsspannung                                             ---------
                                  
ÜE ausgelöst	                                             ---------
Brandfallsteuerung abgeschaltet (Option)                    Brandfallsteuerungen abschalten (Option)                 
akustische Signale abgeschaltet                             akustische Signale abschalten
BMZ rückstellen                                             BMZ rückstellen
---------                                                   ÜE prüfen

Empfehlung nach DIN 14661 für parallele FBF-Schnittstelle (entspricht der CCITT V31

Eingänge FBF                                             Ausgänge FBF                            
max. Eingangsspannung: <_42 V DC                         max. Ausgangsspannung: <_42 V DC
max. Eingangsstrom: <_50 mA                              min. Strombelastbarkeit: 20 mA	
Ansteuerung: aktiv 0V	                                  Ansteuerung: aktiv 0V                   
                      Signaländerungen >_200ms müssen erkannt werden

Inbetriebnahme

Vor Inbetriebnahme ist durch eine Elektrofachkraft eine Prüfung des Zusammenwirken mit der betriebsbereiten BMA durchzuführen. Die Funktionsprüfung erstreckt sich auf die bestimmungsgemäßen Funktionen aller Anzeige- und Bedienelemente, sowie das Zusammenwirken von FBF, BMZ und ÜE. Über die Abnahmeprüfung ist ein Protokoll mit den Unterschriften, der für die Abnahmeprüfung Verantwortlichen, zu erstellen.

Instandhaltung

Die Inspektion und Wartung muss nach DIN 14675 und VDE 0833 durch eine Fachfirma erfolgen.

Inspektion

Eine Inspektion ist mindestens vierteljährlich durchzuführen. Hierbei sind mindestens zu prüfen:

-Äußere Unversehrtheit des FBFs

-Bereitschaftskontrolle der Betriebsanzeige

Wartung

Eine Wartung ist mindestens einmal jährlich durchzuführen. Hierbei sind mindestens zu prüfen:

-Stromaufnahme des FBFs im Ruhezustand und im Alarmzustand

-Alle Funktionen des FBFs

-Beweglichkeit der Außentür(en) und des Verschlusses

Die Wartungsarbeiten müssen in Anwesenheit der Feuerwehr oder deren Beauftragten erfolgen, sofern der notwendige Schlüssel nicht anderweitig zur Verfügung steht. Alle Instandhaltungsarbeiten sind im Betriebshandbuch der jeweiligen BMA einzutragen. Der Betreiber hat der Feuerwehr oder deren Beauftragten die Kontrolle der Funktionen auch außerhalb der jährlichen Wartungsinterwalle zu ermöglichen.




Feuerwehr-Gebäudefunkbedienfeld (FGB) nach DIN 14663

Feuerwehr-Gebäudefunkbedienfeld DIN 14663 mit separatem (eigenständigem) Gehäuse

Bei Objekten mit einer baurechtlich geforderten Feuerwehr-Gebäudefunkanlage muss die Bedienung dieser Anlage durch die Einsatzkräfte der Feuerwehr schnell und gesichert erfolgen. Hierfür ist eine einheitliche Informations- und Bedienoberfläche unerlässlich. Mit DIN 14663 wurde das einfache und einheitliche Feuerwehr-Gebäudefunkbedienfeld (FGB) für jede Feuerwehr-Gebäudefunkanlage genormt.

In der Norm werden im wesentlichen die Funktionen und das einheitliche Erscheinungsbild definiert. Das FGB kann sowohl in einem eigenständigen Gehäuse als auch in anderen Gehäusen mit anderen Bedien- und Anzeigeeinrichtungen der Feuerwehr eingebaut oder integriert sein. Im eigenständigen Gehäuse muss die Gehäuseoberfläche der Farbe RAL 7032 (kieselgrau) entsprechen.

Definition

Das Feuerwehr-Gebäudefunkbedienfeld ist Teil einer Feuerwehr-Gebäudefunkanlage, das bestimmte Betriebszustände in einheitlicher Erscheinungsform anzeigt und den Einsatzkräften der Feuerwehr eine ergonomische und einfache Bedienung im Einsatzfall und bei Funktionsprüfungen ermöglicht.





Aufbau und Funktion

Bild FGB - Bedienfront Anzeige für ”Störung” der Gebäudefunkanlage Anzeige für FGB in ”Betrieb” Anzeige für den eingeschalteten Zustand der Gebäudefunkanlage Taster zum ”EIN” schalten der Gebäudefunkanlage über das FGB Taster zum ”AUS” schalten der Gebäudefunkanlage über das FGB

Anzeige- und Bedienelemente

Bedienfeld in Betrieb LED grün LED gelb LED grün Anzeige § leuchtet, wenn das Feuerwehr-Gebäudefunkbedienfeld betriebsbereit ist Anzeige § leuchtet, wenn die Feuerwehr-Gebäudefunkanlage gestört ist und schaltet

 gleichzeitig einen Sammelausgang

Anzeige § leuchtet, wenn die Feuerwehr-Gebäudefunkanlage eingeschaltet ist Betätigung des Bedienelements § schaltet die Feuerwehr-Gebäudefunkanlage ein Störung der Gebäudefunkanlage EIN

Betätigung des Bedienelements § schaltet die Feuerwehr-Gebäudefunkanlage aus AUS

Besondere Hinweise zur Funktion

Die Feuerwehr-Gebäudefunkanlage wird durch Betätigen des Bedienelementes “EIN“ auf allen Kanälen gleichzeitig eingeschaltet. Mit grünem Dauerlicht im Feld „EIN“ wird angezeigt, dass die Feuerwehr-Gebäudefunkfunkanlage automatisch oder manuell eingeschaltet wurde. Die Feuerwehr-Gebäudefunkanlage wird durch Betätigen des Bedienelementes “AUS“ auf allen Kanälen gleichzeitig ausgeschaltet. Dabei erlischt das grüne Dauerlicht im Feld „EIN“. Wenn die grüne Anzeige „Bedienfeld in Betrieb“ nicht leuchtet, müssen am FGB technische Maßnahmen getroffen werden, welche verhindern das Funktionen angezeigt oder ausgeführt werden. Als Störung muss mindestens der Ausfall der Stromversorgung und / oder der Sende- und Empfangseinrichtung der Feuerwehr-Gebäudefunkanlage durch geeignete Beschaltung angezeigt werden. Diese Störungen können durch einen Sammelausgang an eine ständig besetzte Stelle weitergeleitet werden. Das freie Feld unterhalb der Tasten kann in Abstimmung mit der zuständigen Feuerwehr wahlweise mit anderen Funktionen, z.B. Sprechstelle, belegt werden.


Montage

FGB in Erstinformation der Feuerwehr

Der Montageort muss im Einzelfall zwischen Betreiber und Feuerwehr abgestimmt werden. Das Feuerwehr-Gebäudefunkbedienfeld in unmittelbarer Nähe der Anzeige- und Bedieneinrichtungen der Feuerwehr zu montieren oder darin zu integrieren. Das FGB muss so angeordnet sein, dass es gut zugänglich, sowie ausreichend beleuchtet ist. Die Montagehöhe sollte 1600mm(+100/-200mm), gemessen von der Standfläche des Betätigenden bis Mitte des Bedienfeldes, betragen.

Schließung

In das Türschloss muss ein Profilhalbzylinder nach DIN 18252 einbaubar sein. Auskunft über die einzubauende Schließung erteilt die zuständige Feuerwehr.

Aufbau

Das Feuerwehr-Gebäudefunkbedienfeld muss in einem stabilen Gehäuse mit verschließbarer Tür untergebracht sein. Im Gehäuse müssen für die Anschlussleitungen ein entsprechender Anschlussraum mit Kabeldurchführungen vorhanden sein. Die Anschlussleiste darf nur bei geöffneter Tür zugänglich sein.

Elektrischer Anschluss

Das Feuerwehr-Gebäudefunkbedienfeld darf ohne Überwachung des Übertragungsweges an die Feuerwehr-Gebäudefunkanlage angeschaltet werden. Kabelverbindungen zum FGB sind in Funktionserhalt E90 zu verlegen. Die Energieversorgung muss durch die Feuerwehr- Gebäudefunkanlage sichergestellt werden.

Konformität und Kompatibilität

Die Übereinstimmung des FGB mit der Norm (DIN 14663) ist durch einen Übereinstimmungsnachweis vom Hersteller des FGB schriftlich abzugeben. Der Errichter der Feuerwehr-Gebäudefunkanlage hat die Kompatibilität der verwendeten Bauteile und Anlagenkomponenten sicherzustellen.

Inbetriebnahme

Vor Inbetriebnahme ist durch eine Elektrofachkraft eine Prüfung des Zusammenwirken mit der betriebsbereiten Feuerwehr-Gebäudefunkanlage durchzuführen. Die Funktionsprüfung erstreckt sich auf die bestimmungsgemäßen Funktionen aller Anzeige- und Bedienelemente, sowie das Zusammenwirken von FGB und Feuerwehr-Gebäudefunkanlage. Über die Abnahmeprüfung ist ein Protokoll mit den Unterschriften, der für die Abnahmeprüfung verantwortlichen, zu erstellen.

Instandhaltung

Die Inspektion und Wartung muss sinngemäß nach VDE 0833 durch eine Fachfirma erfolgen.

Inspektion

Eine Inspektion ist mindestens vierteljährlich durchzuführen. Hierbei sind mindestens zu prüfen:

-Äußere Unversehrtheit des FGBs

-Bereitschaftskontrolle der Betriebsanzeige

Wartung

Eine Wartung ist mindestens einmal jährlich durchzuführen. Hierbei sind mindestens zu prüfen:

-Alle Funktionen und Stromaufnahme des FGBs

-Beweglichkeit der Außentür(en) und des Verschlusses

Die Wartungsarbeiten müssen in Anwesenheit der Feuerwehr oder deren Beauftragten erfolgen, sofern der notwendige Schlüssel nicht anderweitig zur Verfügung steht. Der Betreiber hat der Feuerwehr oder deren Beauftragten die Kontrolle der Funktionen auch außerhalb der jährlichen Wartungsinterwalle zu ermöglichen.



Vernetzung von Brandmeldeanlagen nach DIN 14675

Vernetzung: FAT und FBF für zwei Brandmelderzentralen



Wenn bei einer Erweiterung eines Objektes die vorhandene Brandmelderzentrale nicht erweitert werden kann, ist eine größere Brandmelderzentrale oder eine weitere BMZ als Ergänzung zu installieren. Die Erweiterung einer bestehenden BMA ist mit der zuständigen Genehmigungsbehörde (z.B. Feuerwehr) und dem Betreiber abzustimmen. Eine weitere BMZ muss mit der bestehenden Brandmelderzentrale gemäß der VdS-Richtlinie VdS2878 vernetzt werden. Die Vernetzung im Sinne der VDE 0833-2 setzt nicht unbedingt eine Datenschnittstelle voraus, sondern kann auch nach einer definierten Kontaktschnittstelle erfolgen. Die Hauptzentrale steuert zumindest die Übertragungseinrichtung und das Feuerwehr-Schlüsseldepot an. Die Nebenzentrale steuert in jedem Fall die Hauptzentrale an und ggf. die interne Alarmierung. Die Hauptzentrale und die Nebenzentrale(n) werden durch ein erweitertes Feuerwehr-Bedienfeld durch die Feuerwehr bedient. Eine Anlage, die nicht mehr den geltenden Normen entspricht, hat Bestandsschutz und darf nur innerhalb des bestehenden Brandabschnittes erweitert werden. Es dürfen keine neuen Brandabschnitte entstehen. Das bestehende Schutzziel darf nicht erweitert werden.


Definition

Eine Vernetzung (Zusammenschaltung) liegt immer dann vor, wenn bei einer Anlage mit mehr als einer Brandmelderzentrale, mindestens eine Brandmelderzentrale oder Teile einer Brandmelderzentrale übergeordnete Funktionen innerhalb der Anlage ausführen.

Vernetzung verschiedener Brandmelderzentralen

Verfügen die zu vernetzenden Brandmelderzentralen über eine interoperable Systemvernetzung, so ist in der Regel keine Änderung bezüglich der Alarmübertragung, der Funktion des Feuerwehr-Bedienfeldes, des Feuerwehr-Schlüsseldepot und des Feuerwehr-Anzeigetableau erforderlich. Werden Brandmelderzentralen, die über keine interoperable Systemvernetzung verfügen zusammengeschaltet, sind insbesondere die Anforderungen bezüglich Ausfallsicherheit, Bedienung und Anzeige gemäß nachfolgenden Festlegungen zu beachten.

Übertragung des Alarmzustandes

Die Weiterleitung des Alarmzustandes der Nebenzentrale an die Hauptzentrale muss so erfolgen, dass bei einer einfachen Störung (z.B. Drahtbruch oder Kurzschluss in einem Übertragungsweg) die Funktion der Anlage nicht beeinträchtigt werden darf. Zusätzlich müssen Störungen in den Übertragungswegen zwischen den einzelnen Brandmelderzentralen und der Hauptzentrale an der übergeordneten Einrichtungen angezeigt werden. Die Übertragung des Alarmzustandes der Nebenzentrale muss vom Ausgang der Ansteuerung der Übertragungseinrichtung (ÜE) der Nebenzentrale über zwei überwachte Übertragungswege rückwirkungsfrei erfolgen. Die Überwachung der Übertragungswege muss von der Hauptzentrale aus erfolgen. Dabei verhält sich die Nebenzentrale zur Hauptzentrale wie zwei Meldergruppen. Die Beschaltung zur Auslösung der Hauptzentrale durch die Nebenzentrale hat auf Veranlassung des Betreibers und Spezifikation des Errichters der Hauptzentrale zu erfolgen. Sie muss potenzialfrei und rückwirkungsfrei sein.

Übertragung des Störungs- und Abschaltungszustands

Im Fall von Abschaltung und Störung einer Meldergruppe/Melder oder sonstiger Funktionen einer Nebenzentrale müssen diese Informationen jeweils als Sammelanzeige an der Hauptzentrale oder am FAT angezeigt werden. Diese Sammelanzeigen müssen an der Hauptzentrale mit gelber Signalanzeige und mit eindeutiger Kennzeichnung der betroffenen Nebenzentrale ausgeführt werden. Die Übermittlung der Signale „Abschaltung“ und „Störung“ darf über einen gemeinsamen Übertragungsweg erfolgen. Der Übertragungsweg muss überwacht sein. Dabei darf der Störungszustand der Nebenzentrale an der Hauptzentrale als Leitungsstörung angezeigt werden.

Anzeige für die Feuerwehr (Feuerwehr-Anzeigetableau)

FAT für zwei Brandmelderzentralen



Wenn die Brandschutzdienststelle die Forderung nach Anzeige der ausgelösten Meldergruppe/Melder am Feuerwehrhauptzugang stellt, dürfen als Erstinformation ein oder mehrere FATs nach DIN 14662 oder abgesetzte Anzeigeeinrichtungen nach FAT für zwei Brandmelderzentralen DIN EN 54-2 verwendet werden. Die Anforderungen nach DIN EN 54-2 : 1997-12, 12.5.3 sind auf alle Fälle zu beachten. Das heißt, die Signalleitung und die Zuleitung zur Energieversorgung müssen redundant ausgelegt sein. Die Anzeigen für Störung/Abschaltung der Nebenzentrale werden am FAT nach DIN 14662 angezeigt. Die Weiterleitung der Störungsmeldungen an eine ständig besetzte Stelle hat mit geeigneten Maßnahmen zu erfolgen. Die Nummerierung der Meldergruppen hat über die Gesamtanlage fortlaufend zu erfolgen.

Bedienung für die Feuerwehr (Feuerwehr-Bedienfeld)

FBF für zwei Brandmelderzentralen


Die Hauptzentrale muss zumindest für die Anschaltung eines Feuerwehr-Bedienfeldes entsprechend DIN 14661 vorbereitet sein. Für die Vernetzung mehrerer Brandmelderzentralen ist ein erweitertes Feuerwehr-Bedienfeld mit mehreren Schnittstellen erforderlich. Das erweiterte Feuerwehr-Bedienfeld mit gemeinsamer Steuerung/Anzeige für alle Brandmelderzentralen muss der Hauptzentrale zugeordnet sein. Das erweiterte FBF besteht aus einem Zusatz, der den Anschluss weiterer Brandmelderzentralen an das Feuerwehr-Bedienfeld nach DIN 14661 ermöglicht. Sie muss folgenden Anforderungen genügen:

-Die Anschaltung der Nebenzentrale(n) muss potenzialfrei erfolgen

-Die zusätzlichen Anschlüsse müssen, unter Berücksichtigung der betreffenden Funktionen aus DIN EN 54-2, den Schnittstellenbedingungen der DIN 14661 entsprechen

-Die Überwachung der Übertragungswege zwischen dem erweiterten Feuerwehr-Bedienfeld und den Brandmelderzentralen darf indirekt erfolgen. z.B. dadurch, dass mindestens eine Ader der Energieversorgungszuleitung des Feuerwehr-Bedienfeldes, von der Hauptzentrale aus, durch alle Zuleitungen geschleift wird, so dass bei einem Leitungsfehler einer Feuerwehr-Bedienfeld-Zuleitung die grüne Betriebsanzeige am Feuerwehr-Bedienfeld erlischt

-Der Erweiterungs-Zusatz zum Feuerwehr-Bedienfeld und das Feuerwehr-Bedienfeld sind örtlich zusammenzufassen. Welche Funktionen das Feuerwehr-Bedienfeld anzeigt, bzw. welche Funktionen für welche

Brandmelderzentralen wirksam werden müssen, ist nachstehender Tabelle zu entnehmen:


Anzeige oder Steuer-Funktion

LED Betrieb LED Löschanlage ausgelöst Schalter / Taster akustische Signale ab LED akustische Signale ab LED Rückmeldung akustische Signale ab Schalter ÜE ab LED ÜE ab LED Rückmeldung ÜE ab Taster ÜE prüfen Taster BMZ rückstellen LED BMZ rückstellen Schalter Brandfallsteuerungen ab LED Brandfallsteuerungen ab LED Rückmeldung Brandfallsteuerungen ab ÜE ausgelöst

Signal ist wirksam für(*) / bzw. stammt von(x): Haupt - BMZ Neben - BMZ 1 Neben - BMZ n x geschleift geschleift x x x * * * x x x (FBF-interne Fkt.) (FBF-interne Fkt.) (FBF-interne Fkt.) * x (FBF-interne Fkt.) * * * * x * * * x x x (FBF-interne Fkt.) x

Leitungsverlegung

Die Redundanzwege müssen jeweils in getrennten Kabeln verlegt werden. Bei einem einfachen Leitungsfehler (Drahtbruch, Kurzschluss oder Fehler gleicher Wirkung) muss eine Anzeige der Störungsmeldung an der übergeordneten Brandmelderzentrale erfolgen und die Redundanzleitung muss das vorgesehene Signal übertragen. Der überwachte Übertragungsweg für Störungs- und Abschaltzustand darf in einem Kabel mit dem Redundanzweg der Brandmeldung mitgeführt werden. Bei erforderlicher Berücksichtigung der Leitungsanlagenrichtlinie (LAR) sind die Übertragungswege als Leitungsanlage einer Brandmeldeanlage aufzufassen. (BHE-Infopapier)

Sonstiges

Die jeweiligen Flächenbegrenzungen und zugehörigen Redundanzmaßnahmen sind den Anforderungen nach VDE 0833-2, 6.2.1 ”Brandmelderzentrale” zu entnehmen und gelten für die übergeordnete Brandmelderzentrale bezogen auf die Gesamtanlagengröße. Eine weitergehende Kaskadierungsstufe untergeordneter Brandmelderzentralen ist nicht zulässig. Die Funktionen der Nebenzentralen, die nicht in Betrieb sind, z.B. Feuerwehr rufen, etc. sind so zu beschalten, dass keine missverständlichen Anzeigen möglich sind. Nach durchgeführten Instandhaltungsmaßnahmen hat der jeweilige Errichter sich vom Zustand der Gesamtanlage am FBF/FAT/bzw. an der abgesetzten Anzeigeeinrichtung zu überzeugen.

Kompatibilität

Das funktionsgerechte Zusammenwirken der einzelnen Komponenten muss gewährleistet sein. Im Zweifelsfall ist die Funktionalität durch eine unabhängige Prüfstelle festzustellen.


Praxisbeispiel

Drei Brandmelderzentralen auf ein FBF und 4 FATs mit Protokolldrucker


Feuerwehr-Laufkarten nach DIN 14675

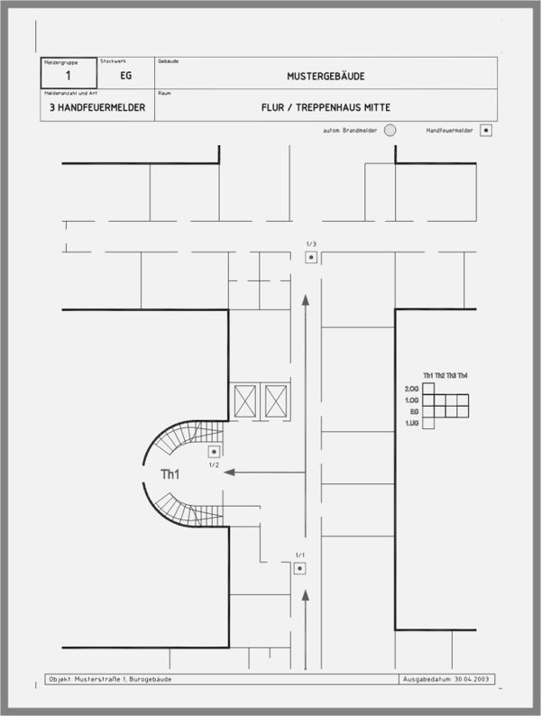
Feuerwehr-Laufkarte DIN 14675

Für jede Meldergruppe ist eine Feuerwehr-Laufkarte bereitzuhalten. Grundlage für die Erstellung der Feuerwehr-Laufkarten sind die aktuellen Ausführungsunterlagen der BMA mit eingetragenen Melder, Meldergruppen, Meldebereich, Alarmbereich und die aktuellen Geschosspläne. Die Aktualisierung der Feuerwehr- Laufkarten muss durch den Betreiber sichergestellt sein.

Definition

Feuerwehr-Laufkarten sind eigenständige grafische Hilfsmittel für die Orientierung der Feuerwehr-Einsatzkräfte zur Lokalisierung des ausgelösten Melders.

Ausführung

Die Feuerwehr-Laufkarten müssen gut lesbar und übersichtlich aufgebaut sein, um für die Einsatzkräfte der Feuerwehr eine schnelle Lokalisierung des Brandortes im Gebäude sicherzustellen. Die Größe der Feuerwehr-Laufkarte sollte das Format DIN A4 nicht übersteigen. Für größere Objekte ist nach Zustimmung der Feuerwehr auch das Format DIN A3 zulässig. In jedem Fall müssen die Darstellungen auf der Feuerwehr-Laufkarte dem gewählten Format entsprechend angepasst und formatfüllend sein. Die Feuerwehr-Laufkarten müssen aus formstabiler Folie oder aus Karton in geschützter Folie bestehen. Hinweise zur Gestaltung von Feuerwehr- Laufkarten sind der DIN 14675 oder den Technischen Anschlußbestimmungen (TAB) der regionalen Feuerwehren zu entnehmen. Unter www.din-1465.de sind einzelne TAB´s abrufbar.

Bei Brandmeldeanlagen, die über ein Informationssystem mit automatischem Ausdruck von Feuerwehr-Laufkarten verfügen, müssen die Forderungen der DIN 14675 eingehalten werden. Zur Redundanz muss in diesem Fall ein Satz ausgedruckter Feuerwehr-Laufkarten zur Verfügung stehen.


Aufbewahrung

Alle Feuerwehr-Laufkarten sind griffbereit an der Feuerwehr-Erstinformation oder an der BMZ aufzubewahren. Das Depot muss gegen unberechtigten Zugriff gesichert und mit der Beschriftung „FEUERWEHR-LAUFKARTEN“ gekennzeichnet sein.

Symbole

Einsatzaktuelle Laufkartenerstellung während der Feuerwehranfahrt


Die in Feuerwehr-Laufkarten zu verwendenden grafischen Symbole, sind einheitlich festgelegt. Sie sind form- und farbidentisch darzustellen. Wird auf der Feuerwehr-Laufkarte eine Legende aufgenommen, dürfen sich in dieser nur diejenigen Symbole wiederfinden, die in der dargestellten Meldergruppe auch tatsächlich Verwendung finden.











































Aufbau

Feuerwehr-Laufkarten müssen wie folgt aufgebaut sein:


LK45-a.jpg


Vorderseite

Auf der Vorderseite muss die Gebäudeübersicht mit Grundriss dargestellt sein. Sofern erforderlich ist eine Schnittdarstellung oder ein Grundriss mit Teilausschnitt darzustellen. Aus der Gebäudeübersicht muss der Weg von der Anzeige- und Bedieneinrichtung der Feuerwehr bzw. von der BMZ bis zur ausgelösten Meldergruppe mit einem grünen Pfeil erkennbar sein.




LK45-b.jpg

Rückseite

Auf der Rückseite muss der Detailplan für den Meldebereich dargestellt sein. Sofern erforderlich ist eine Schnittdarstellung oder ein Grundriss mit Teilausschnitt darzustellen. Zur eindeutigen Lokalisierung des Brandortes muss jeder Einzelmelder der Meldergruppe mit einer Meldernummer versehen sein. Automatische Melder und Handfeuermelder müssen eindeutig erkennbar sein.

Informationsgehalt

Eine Feuerwehr-Laufkarte muss mindestens folgende Informationen enthalten:

-Meldergruppennummer

-Meldernummer(n)

-Melderart- und Anzahl

-Gebäude / Geschoss / Raum

-Standort von FAT, FBF, BMZ und ÜE

-Laufweg vom Standort zum Meldebereich

-Im Laufweg liegende Treppen und Türen

-Raumkennzeichnung bzw. Nutzung

-Bemerkung, falls zutreffend (z.B. Ex-Bereich)

-Objektname oder Ort (z.B. Straßenbezeichnung)

-Datum der letzten Aktualisierung





















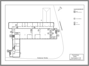
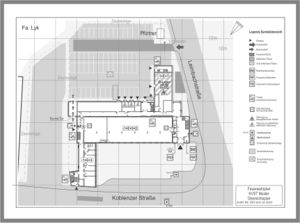
Feuerwehrplan

Feuerwehrplan - Übersichtsplan


Der Feuerwehrplan ist kein Bestandteil der Brandmeldeanlage und somit der DIN 14675. Feuerwehrpläne ersetzen nicht die erforderlichen Feuerwehr-Laufkarten nach DIN 14675. Feuerwehrpläne sind Orientierungsmittel für Einsatzkräfte der Feuerwehren zur Beurteilung einer Gefahrensituation und zur raschen Orientierung in einem Objekt oder einer baulichen Anlage. Bei Bedarf sind ein Übersichtsplan und mehrere Detail- bzw. Geschosspläne zu erstellen.


Feuerwehrplan - Geschossplan


Für das einsatztaktische Vorgehen der Einsatzkräfte müssen Feuerwehrpläne mindestens beinhalten:

-Art der Nutzung

-Feuerwehraufzüge

-Bedienstellen von Rauch- und Wärmeabzugsanlagen

-Steigleitungen

-Trennwände der Brandabschnitte

-Nicht befahrbare Flächen

-Begehbare Flächen

-Durchfahrtshöhen

-Benachbarte Gebäude und deren Nutzung

-Löschwasserentnahmestellen



Symbole

FP47.jpg

Die in Feuerwehrplänen zu verwendenden grafischen Symbolesind einheitlich festgelegt. Sie sind form- und farbidentisch darzustellen. Wird auf dem Feuerwehrplan eine Legende aufgenommen, dürfen sich in dieser nur diejenigen Symbole wiederfinden, die in der dargestellten Meldergruppe auch tatsächlich Verwendung finden.


























Neue Wege: Erstellen von Laufkarten während der Feuerwehranfahrt

Einsatzaktuelle Laufkartenerstellung während der Feuerwehranfahrt


Je größer das zu schützende Objekt ist, desto mehr Laufkarten müssen aktuell vorgehalten werden. Dies bedeutet für den Betreiber kostenintensive Produktion und aufwändige Lagerung, Änderung und Pflege. Systeme, wie das Feuerwehr-Koordinations-System von SCHRANER, generieren nur im Alamrfall die tatsächlich erforderlichen Laufkarten in der jeweils aktuellen Fassung. Zusätzlich kann sogar der ausgelöste Brandmelder in der entsprechenden Meldergruppe optisch hervorgerufen werden. Die Erstellung und Änderung erfolgt mit jeder kundenseitigen Grafiksoftware und ist somit universall und wirtschaftlich.