Feuerwehr-Laufkarten: Unterschied zwischen den Versionen
(Änderung 1840 von 74.213.164.31 (Diskussion) wurde rückgängig gemacht.) |
(Änderung 1839 von 222.77.14.54 (Diskussion) wurde rückgängig gemacht.) |
||
| Zeile 119: | Zeile 119: | ||
-Datum der letzten Aktualisierung | -Datum der letzten Aktualisierung | ||
| − | + | =Feuerwehrplan= | |
| + | |||
| + | [[Datei:FP46-a.jpg|left|thumb|200px|Feuerwehrplan - Übersichtsplan]] | ||
| + | |||
| + | <br style="clear:both;"/> | ||
| + | |||
| + | Der Feuerwehrplan ist kein Bestandteil der Brandmeldeanlage und somit der DIN 14675. Feuerwehrpläne ersetzen nicht die erforderlichen Feuerwehr-Laufkarten nach DIN 14675. Feuerwehrpläne sind Orientierungsmittel für Einsatzkräfte der Feuerwehren zur Beurteilung einer Gefahrensituation und zur raschen Orientierung in einem Objekt oder einer baulichen Anlage. Bei Bedarf sind ein Übersichtsplan und mehrere Detail- bzw. Geschosspläne zu erstellen. | ||
| + | |||
| + | [[Datei:FP46-b.jpg|left|thumb|200px|Feuerwehrplan - Geschossplan]] | ||
| + | |||
| + | <br style="clear:both;"/> | ||
| + | |||
| + | Für das einsatztaktische Vorgehen der Einsatzkräfte müssen Feuerwehrpläne mindestens beinhalten: | ||
| + | |||
| + | -Art der Nutzung | ||
| + | |||
| + | -Feuerwehraufzüge | ||
| + | |||
| + | -Bedienstellen von Rauch- und Wärmeabzugsanlagen | ||
| + | |||
| + | -Steigleitungen | ||
| + | |||
| + | -Trennwände der Brandabschnitte | ||
| + | |||
| + | -Nicht befahrbare Flächen | ||
| + | |||
| + | -Begehbare Flächen | ||
| + | |||
| + | -Durchfahrtshöhen | ||
| + | |||
| + | -Benachbarte Gebäude und deren Nutzung | ||
| + | |||
| + | -Löschwasserentnahmestellen | ||
| + | |||
| + | ==Symbole== | ||
| + | |||
| + | |||
| + | [[Datei:FP47.jpg|left|thumb|200px]] | ||
| + | |||
| + | <br style="clear:both;"/> | ||
| + | |||
| + | Die in Feuerwehrplänen zu verwendenden grafischen Symbolesind einheitlich festgelegt. Sie sind form- und farbidentisch darzustellen. Wird auf dem Feuerwehrplan eine Legende aufgenommen, dürfen sich in dieser nur diejenigen Symbole wiederfinden, die in der dargestellten Meldergruppe auch tatsächlich Verwendung finden. | ||
| + | |||
| + | |||
| + | |||
| + | That's the best anwesr of all time! JMHO | ||
Version vom 1. Mai 2011, 10:58 Uhr
Inhaltsverzeichnis
Feuerwehr-Laufkarten nach DIN 14675
Für jede Meldergruppe ist eine Feuerwehr-Laufkarte bereitzuhalten. Grundlage für die Erstellung der Feuerwehr-Laufkarten sind die aktuellen Ausführungsunterlagen der BMA mit eingetragenen Melder, Meldergruppen, Meldebereich, Alarmbereich und die aktuellen Geschosspläne. Die Aktualisierung der Feuerwehr- Laufkarten muss durch den Betreiber sichergestellt sein.
Definition
Feuerwehr-Laufkarten sind eigenständige grafische Hilfsmittel für die Orientierung der Feuerwehr-Einsatzkräfte zur Lokalisierung des ausgelösten Melders.
Ausführung
Die Feuerwehr-Laufkarten müssen gut lesbar und übersichtlich aufgebaut sein, um für die Einsatzkräfte der Feuerwehr eine schnelle Lokalisierung des Brandortes im Gebäude sicherzustellen. Die Größe der Feuerwehr-Laufkarte sollte das Format DIN A4 nicht übersteigen. Für größere Objekte ist nach Zustimmung der Feuerwehr auch das Format DIN A3 zulässig. In jedem Fall müssen die Darstellungen auf der Feuerwehr-Laufkarte dem gewählten Format entsprechend angepasst und formatfüllend sein. Die Feuerwehr-Laufkarten müssen aus formstabiler Folie oder aus Karton in geschützter Folie bestehen. Hinweise zur Gestaltung von Feuerwehr- Laufkarten sind der DIN 14675 oder den Technischen Anschlußbestimmungen (TAB) der regionalen Feuerwehren zu entnehmen. Unter www.din-14675.de [1] sind einzelne TAB´s abrufbar.
Bei Brandmeldeanlagen, die über ein Informationssystem mit automatischem Ausdruck von Feuerwehr-Laufkarten verfügen, müssen die Forderungen der DIN 14675 eingehalten werden. Zur Redundanz muss in diesem Fall ein Satz ausgedruckter Feuerwehr-Laufkarten zur Verfügung stehen.
Aufbewahrung
Alle Feuerwehr-Laufkarten sind griffbereit an der Feuerwehr-Erstinformation oder an der BMZ aufzubewahren. Das Depot muss gegen unberechtigten Zugriff gesichert und mit der Beschriftung „FEUERWEHR-LAUFKARTEN“ gekennzeichnet sein.
It's spooky how clever some ppl are. Thnkas!
Aufbau
Feuerwehr-Laufkarten müssen wie folgt aufgebaut sein:
Vorderseite
Auf der Vorderseite muss die Gebäudeübersicht mit Grundriss dargestellt sein. Sofern erforderlich ist eine Schnittdarstellung oder ein Grundriss mit Teilausschnitt darzustellen. Aus der Gebäudeübersicht muss der Weg von der Anzeige- und Bedieneinrichtung der Feuerwehr bzw. von der BMZ bis zur ausgelösten Meldergruppe mit einem grünen Pfeil erkennbar sein.
Rückseite
Auf der Rückseite muss der Detailplan für den Meldebereich dargestellt sein. Sofern erforderlich ist eine Schnittdarstellung oder ein Grundriss mit Teilausschnitt darzustellen. Zur eindeutigen Lokalisierung des Brandortes muss jeder Einzelmelder der Meldergruppe mit einer Meldernummer versehen sein. Automatische Melder und Handfeuermelder müssen eindeutig erkennbar sein.
Informationsgehalt
Eine Feuerwehr-Laufkarte muss mindestens folgende Informationen enthalten:
-Meldergruppennummer
-Meldernummer(n)
-Melderart- und Anzahl
-Gebäude / Geschoss / Raum
-Standort von FAT, FBF, BMZ und ÜE
-Laufweg vom Standort zum Meldebereich
-Im Laufweg liegende Treppen und Türen
-Raumkennzeichnung bzw. Nutzung
-Bemerkung, falls zutreffend (z.B. Ex-Bereich)
-Objektname oder Ort (z.B. Straßenbezeichnung)
-Datum der letzten Aktualisierung
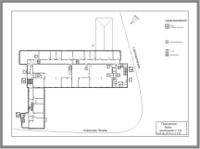
Feuerwehrplan
Der Feuerwehrplan ist kein Bestandteil der Brandmeldeanlage und somit der DIN 14675. Feuerwehrpläne ersetzen nicht die erforderlichen Feuerwehr-Laufkarten nach DIN 14675. Feuerwehrpläne sind Orientierungsmittel für Einsatzkräfte der Feuerwehren zur Beurteilung einer Gefahrensituation und zur raschen Orientierung in einem Objekt oder einer baulichen Anlage. Bei Bedarf sind ein Übersichtsplan und mehrere Detail- bzw. Geschosspläne zu erstellen.
Für das einsatztaktische Vorgehen der Einsatzkräfte müssen Feuerwehrpläne mindestens beinhalten:
-Art der Nutzung
-Feuerwehraufzüge
-Bedienstellen von Rauch- und Wärmeabzugsanlagen
-Steigleitungen
-Trennwände der Brandabschnitte
-Nicht befahrbare Flächen
-Begehbare Flächen
-Durchfahrtshöhen
-Benachbarte Gebäude und deren Nutzung
-Löschwasserentnahmestellen
Symbole
Die in Feuerwehrplänen zu verwendenden grafischen Symbolesind einheitlich festgelegt. Sie sind form- und farbidentisch darzustellen. Wird auf dem Feuerwehrplan eine Legende aufgenommen, dürfen sich in dieser nur diejenigen Symbole wiederfinden, die in der dargestellten Meldergruppe auch tatsächlich Verwendung finden.
That's the best anwesr of all time! JMHO